dsx s100 wiring diagram
Sony Xav Ax100 Wiring Diagram - NICOLSTALKER. 14 Images about Sony Xav Ax100 Wiring Diagram - NICOLSTALKER : Sony Dsx S100 Wiring Diagram - Wiring Schema, Sony Dsx S100 Wiring Diagram and also DS360 | Drives by Yaskawa | MRO Drives.
Sony Xav Ax100 Wiring Diagram - NICOLSTALKER
xav ax100 headunit
DS2050 | Drives By Yaskawa | MRO Drives

yaskawa mrodrives
Ask The Editors: DS650 CDI Blues - ATVConnection.com

bombardier ds650 cdi atvconnection
Sony Dsx S100 Wiring Diagram

dsx sony wiring s100 diagram receiver fm player digital am
FUNDAMENTALS OF ENGINEERING ECONOMICS PARK SOLUTIONS MANUAL - Auto

LEXUS Car Radio Stereo Audio Wiring Diagram Autoradio Connector Wire

wiring diagram pioneer toyota radio stereo connector pinout lexus autoradio deh audio land corolla cruiser unit head 1999 pinoutguide tehnomagazin
VVDI PROG Wiring Diagram & Pinout (Real Test Reports) | Car Key Programmer

pinout vvdi iaw diagram prog wiring reports test
GM Acadia 2010 Engine Electrical Circuit Wiring Diagram » CarFuseBox

acadia wiring carfusebox
DS360 | Drives By Yaskawa | MRO Drives

ds360 yaskawa ds340 mrodrives
Instrument Panel Wiring Issues DS23.

ds23
Sony Dsx S100 Wiring Diagram - Wiring Schema
dsx s100 wiring
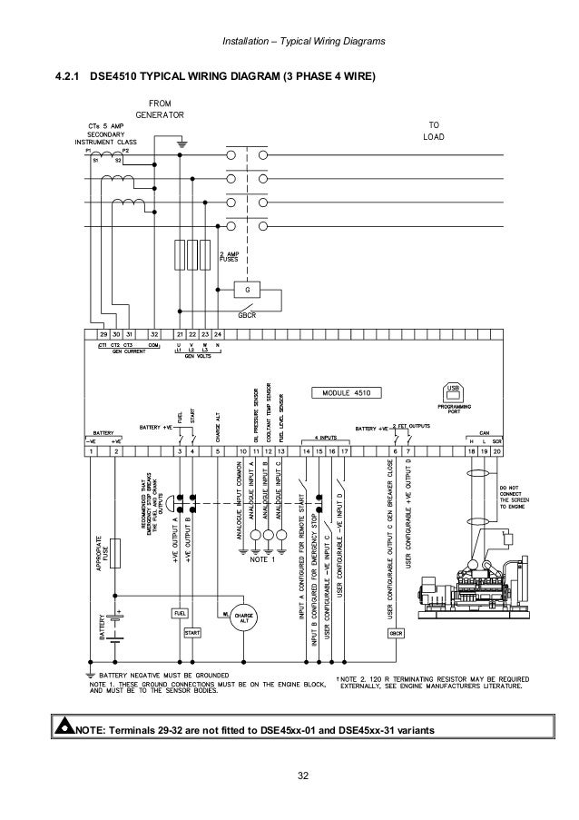
Dse4510 Dse4520-operator-manual

dse4520 dse
Sony Xav Ax100 Wiring Diagram - NICOLSTALKER

ax100 xav
S2000 Wiring Diagram - Complete Wiring Schemas
s2000 wiring diagram cdx sony
Fundamentals of engineering economics park solutions manual. Dse4510 dse4520-operator-manual. Sony dsx s100 wiring diagram